Now loading...

リビングを広くする・他

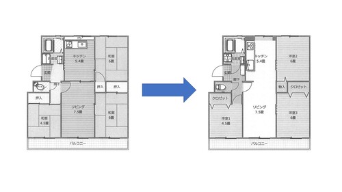
キッチンとリビングの壁を解体して、お部屋を広くします キッチンの位置を変更します(風通しが良くなるのと、採光をより良くする為)

完成後・図面

洋室入口と収納用建具取替

和室→洋室に変更します

施工前

クローゼットに変更します

施工後・クローゼット

施工前・リビング

施工後・リビング

施工前・和室

施工後・和室→洋室へ

キッチンの向きを変え間口を大きくします

キッチンの向きを変更したので採光と風通しが良くになりました

リビングダイニングが広くなりました

施工前

和室→洋室

玄関収納

洗濯パン

施工前

施工後・トイレ

神戸市須磨区 –名谷8団地-

1977年 建築・ マンション 

リノベーション工事・間取りは4DK→3LDKへ

【弊社販売済物件です】
お問い合わせはこちら